Дом, с. Анискино Показать на карте
с. Анискино
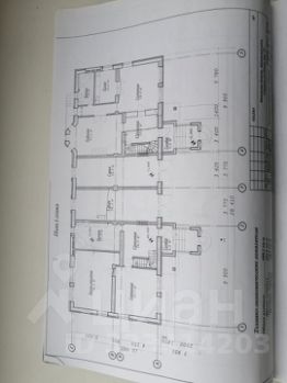
id:284. Срочно!!! Продам дом в деревне Аниськино!!! Проект для коммерческого использования!!! Построен первый этаж, частично отделан. Начато строительство второго этажа. Дом разделен на четыре независимые студии по 21.5 кв. м. с водоснабжением и канализацией, что позволяет использовать его в коммерческих целях. Дом 8 на 13, высота этажа 3м. Стены - пеноблоки, облицованные кирпичом, утепленное бетонное перекрытие, фундамент - утепленная плита. На участке выкопан колодец 13 колец, газ низкого давления. Канализация - септик. Капитальный кирпичный забор. Так же можно использовать для открытия ПВЗ Озон, Вайлдбериз и тд. Круглогодичный подъезд по Монинскому шоссе. В шаговой доступности автобусная остановка, православный храм, строительный рынок, сетевые магазины, деский сад, школа. Недалеко река с пляжем и рыбой, грибной лес. Дом достраивается, цена может измениться. Юридическое сопровождение сделки в подарок. Помощь в одобрении ипотеки по специальным ставкам банков партнеров. Консультация юриста бесплатно!!! Звоните!!!
104 м2
1 этаж
- Показать контакты
- Добавить в избранное
104 м2
1 этаж
7 699 000
74 029 /м2
